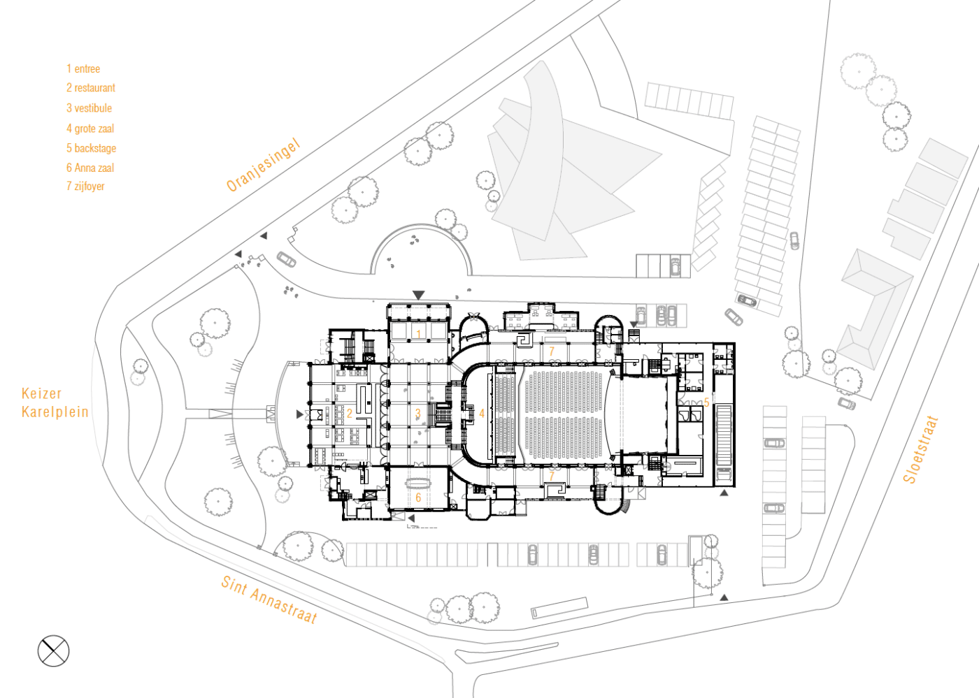
Concertgebouw De Vereeniging, Nijmegen
Integrale renovatie van een icoon aan het Keizer Karel Plein

Ook de laatste fase van de grootscheepse renovatie en restauratie van Concertgebouw De Vereeniging is afgerond. Sinds oktober 2011 werkte Braaksma & Roos Architectenbureau samen met Keizer Karel Podia aan een integraal masterplan voor het interieur en exterieur van dit iconische rijksmonument. Van een donker en ontoegankelijk gebouw transformeerden wij De Vereeniging tot een transparant, licht en gastvrij concertgebouw in het culturele hart van de stad.

De Opgave

Het roer om: een nieuwe eeuw voor De Vereeniging

Door musici uit binnen- en buitenland wordt De Vereeniging geroemd om z’n akoestische kwaliteiten en vaak in één adem genoemd met het Concertgebouw in Amsterdam en de Musikverein in Wenen. Het gebouw is met de tijd echter zo vaak aangepast aan de veranderende gebruikseisen dat de kwaliteit van het monument erg is aangetast. Met het oog op het honderdjarige bestaan wilde exploitant Keizer Karel Podia het roer omgooien. Braaksma & Roos Architectenbureau werd geselecteerd om een totaalmasterplan te ontwikkelen voor een grootscheepse renovatie.

Analyse

Een licht en transparant concertgebouw

Duikend in het verhaal van De Vereeniging ontdekten wij hoe rijk en feestelijk het gebouw was ontworpen. Vanuit de lichte vestibule kon men via de kleurrijke zijfoyers de Grote Zaal betreden of een drankje nuttigen in het rijk gedecoreerde Grand Café aan de pleinzijde. Het gebouw had een transparante uitstraling en een belangrijke relatie met de omgeving; op een zonnige dag stonden de glazen deuren van het Grand Café open en kon men op het terras van het uitzicht genieten over het – toen nog – rustige Keizer Karelplein.

Het Masterplan

Herstel van helderheid en allure

De rijke uitstraling en de ruimtelijke eenheid en transparantie zijn volledig verloren gegaan tijdens de vele verbouwingen. Ons team zag het herstel van deze elementen dan ook als belangrijk uitgangspunt in het masterplan. Geen reconstructie van wat er niet meer is, maar opnieuw helderheid en samenhang tussen de ruimten creëren en een nieuwe interpretatie geven op de feestelijke en kleurrijke sfeer van honderd jaar geleden.

Het resultaat

Kleurrijke feestelijkheid

De centrale ontvangstruimte in het gebouw heeft weer een voorname, rijke uitstraling gekregen en licht op als het stralende hart van De Vereeniging. De zijfoyers en de Grote Zaal hebben een kleurrijke afwerking gekregen, geïnspireerd op het oorspronkelijke kleur- en materiaalgebruik. Het ontwerp voor het Grand Café is geïnspireerd op toen maar heeft tegelijkertijd een eigentijdse ambiance. Naast een bar hebben wij een lange uitgiftebalie gerealiseerd. Zo kunnen alle gasten optimaal en snel worden bediend tijdens de concertpauzes. Ruimtelijk vormt het Grand Café nu weer een verbindend element tussen binnen en buiten. Tegelijkertijd is er een bijzondere transparantie gecreëerd tussen de vestibule en het Grand Café, waardoor men van buitenaf ver in het gebouw kan kijken.

Alles op de goede plek

De facilitaire en sanitaire functies waren voor de renovatie verspreid over het hele gebouw in de zijfoyers en bovendien sterk verouderd. De nieuwe, ruime garderobe hebben wij onder het eerste balkon van de Grote Zaal geplaatst en onder de vestibule is een bypass ontworpen die aansluit op de nieuwe toiletgroepen. Zo zijn de belangrijke bezoekersfuncties geclusterd in het hart van het gebouw.

Duurzaamheid

Een duurzaam rijksmonument

Het gebouw is geheel verduurzaamd en voorzien van moderne en innovatieve technische installaties. In de Grote Zaal is het ba-opt klimaatsysteem toegepast, waardoor een constante en aangename temperatuur bereikt wordt en koudeval wordt tegengegaan. Door verschillende verbouwingen van het podium en de zaal was de kwaliteit van de akoestiek in de tijd verslechterd. Met zorgvuldige ingrepen hebben wij de akoestiek én de uitstraling van de zaal en het podium verbeterd en geschikt gemaakt voor divers gebruik.

De backstage

De kers op de taart

Als slotstuk was de backstage aan de beurt. Als gevolg van alle eerdere verbouwingen was het verrommeld, verhokt en veel te klein om het huidige intensieve gebruik van grote groepen aan te kunnen. De rondgang om de Grote Zaal werd bovendien geblokkeerd door de vele niveauverschillen. Door een uitbreiding van het totale achtercomplex kunnen artiesten nu terecht in moderne foyers en ruime kleedkamers. Smalle doorgangen zijn open gebroken en diverse niveauverschillen zijn gladgestreken en gestructureerd.

Boven de artiestenruimtes, op de eerste verdieping, is een grootse zaal gecreëerd die met twee opvouwbare wanden flexibel en multifunctioneel ingezet kunnen worden. De verdieping is met zijn grote glazen ramen een oase van licht en ruimtelijkheid. De artiesten worden niet langer weggestopt in het kleinste kamertje, maar mogen gezien worden op dit ruimtelijke stadsbalkon.

Logistiek

De expeditie

De logistieke situatie van de expeditie is sterk verbeterd. De achterzijde van het pand is toegankelijk gemaakt voor vrachtwagens waar ze nu hun goederen in alle weersomstandigheden goed en wel kunnen lossen of laden. Deze ingang heeft een kenmerkende ronde vorm die is afgeleid van de trappentorens uit het originele bouwwerk. De nieuwbouw is niet alleen in vorm een antwoord op het monumentale deel, maar ook in materiaal en kleur. Door hetzelfde palet te gebruiken wordt de vernieuwde aanbouw duidelijk onderdeel van het grote geheel.

Projectgegevens

Opdrachtgever:
Gemeente Nijmegen
Gebruiker:
Keizer Karel Podia (nu Stadsschouwburg en De Vereeniging)
Locatie:
Keizer Karelplein, Nijmegen
Datum:
2012 - 2018
Status:
Rijksmonument
Omvang:
10.000 m2
Programma:
Cultuur, horeca, evenementen
Interieur:
Peter Sas, Van der Plan Meubel & Project, Beersnielsen Lighting Designers
Landschap:
Marlies van Diest
Bouwmanagement:
PRO Consultants
Adv. constr.:
Croes Bouwtechnisch Ingenieursbureau
Adv. inst.:
K&R Constultants
Adv. akoestiek:
Peutz
Adv. Theater:
Theateradvies B.V.
Adv. Horeca:
Moerkerk Advies
Aannemer:
De Bonth van Hulten, Homij, BAM Techniek, StaPoTech, Schakel Schilderbedrijf
Fotografie:
Arjen Veldt