Stadhuis, Culemborg
Huis van de stad

In 2011 realiseerde Braaksma & Roos Architectenbureau de grondige renovatie en herontwikkeling van het oude stadhuis van Culemborg tot een open en transparante werk- en ontmoetingsplek: het Huis van de Stad. Daarnaast heeft ons team het hoog monumentale complex aan de achterzijde uitgebreid met een nieuwe, lichte raadszaal. Het project is in bijzondere co-creatie met het stadsbestuur tot stand gekomen. Het resultaat is een stadhuis met een warme sfeer, waar zowel burgers als ambtenaren zich welkom voelen en waar de rijke geschiedenis van de plek optimaal te beleven is.

De opgave

Een veelzijdig programma in een complexe monumentale omgeving

Het stadhuis van Culemborg heeft veel verschillende gebruiksscenario’s; kort na elkaar, gelijktijdig, besloten en publiek. Daarnaast krijgt het stadhuis te maken met grote en verschillende bezoekersstromen – er vinden zowel burgerlijke als burgerlijke en commerciële activiteiten plaats. Vanuit de gemeente was de wens om een zichtbare, gastvrije en transparante werk- en ontmoetingsomgeving te realiseren met een heldere routing. Tegelijkertijd was het nodig voor de brandveiligheid en de veiligheid van de raadsleden ten aanzien van het publiek om het complex te compartimenteren en de verschillende publieksstromen te scheiden.

Analyse

Een historisch complex met een rijke gelaagdheid

De kern van het stadhuiscomplex in Culemborg is het 16e-eeuwse waag met het oude stadhuis – prachtige laatgotische gebouwen, verrijkt met renaissance details, bekroond door een markante trapgevel. In de volgende eeuwen zijn verschillende gebouwen rondom de oude kern gebouwd, waardoor het complex een bijzondere gelaagde samenstelling heeft gekregen. Binnen kent het gebouw nog vele rijk gedecoreerde interieurs zoals de oorspronkelijke raadszaal met de imposante schouw en glas-in-lood ramen en zware balkenplafonds.

Onze visie

Scheiding van publieksstromen

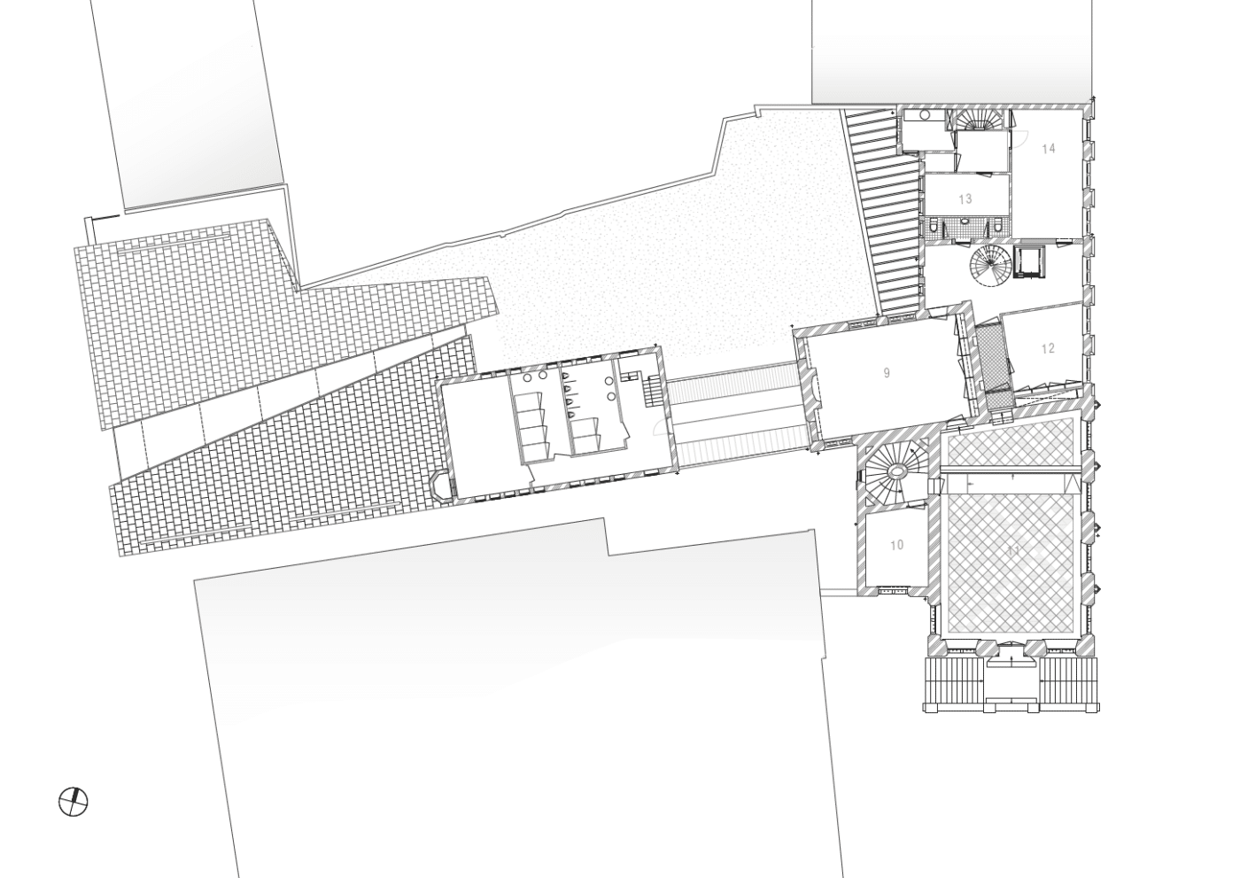
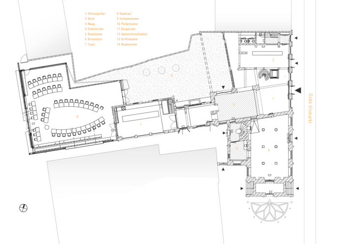
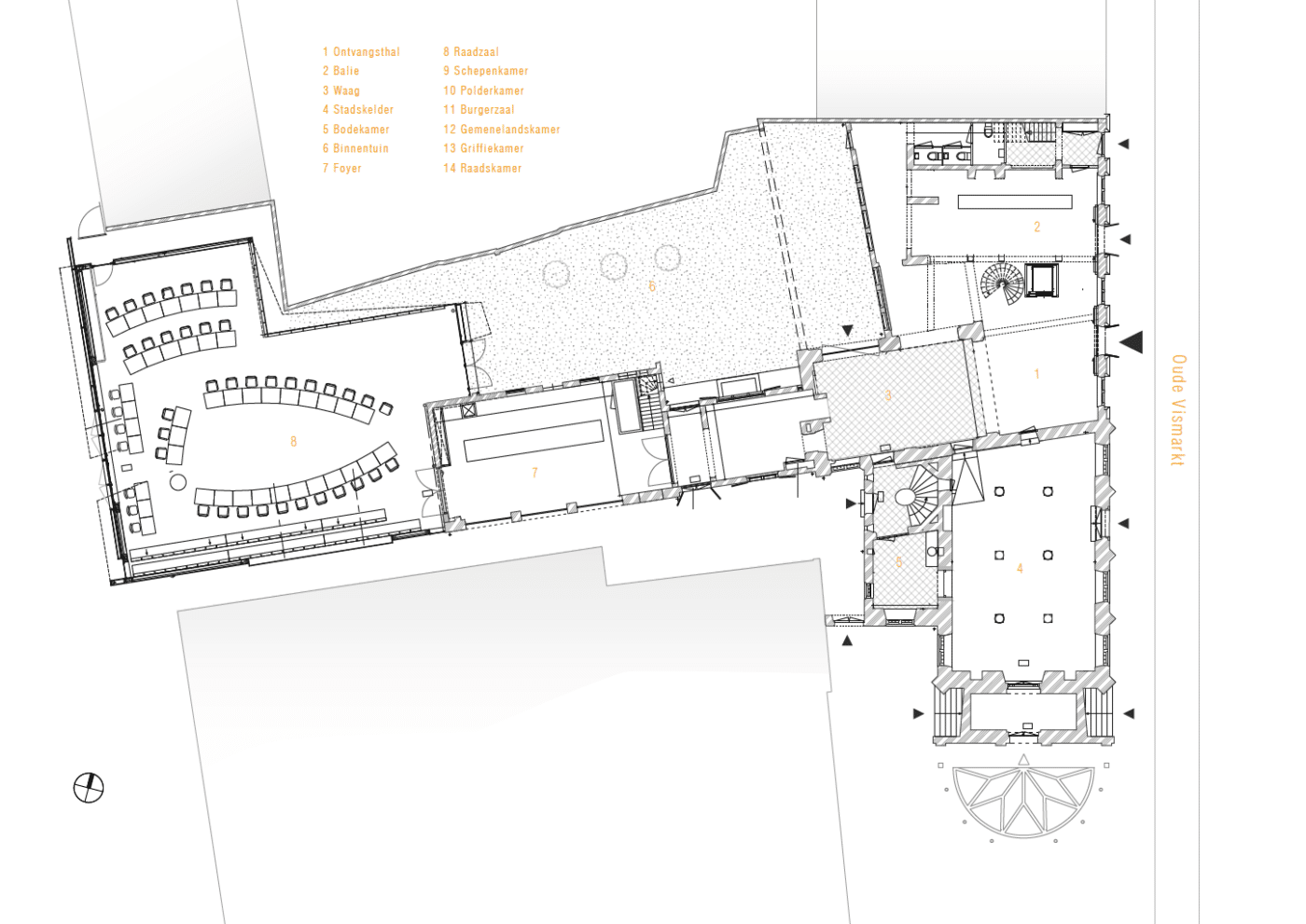
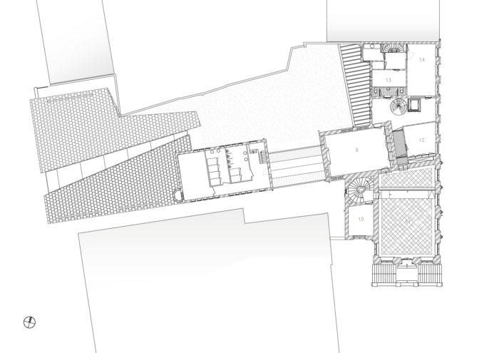
De oplossing voor het scheiden van de verschillende functies en doelgroepen werd gevonden in het ontwerp van een verticale segregatie van het complex. De begane grond vormt daarbij het eerste compartiment met openbare functies en aan de achterzijde de nieuwe, eigentijdse raadszaal. De oude rijksmonumentale kern en de nieuwe kern vloeien naadloos in elkaar over. Het waaggebouw vult hierin een belangrijke verbindingsfunctie naar alle delen van het complex. Het tweede compartiment wordt gevormd door de verdiepingen, die ruimte bieden aan de bestuurlijke functies.

Het resultaat

Gerichte ingrepen ten behoeve van een transparant gebouw

Omwille van de transparantie en heldere routing zijn hele precieze ingrepen gedaan in de monumentale panden. Wij hebben zorgvuldige afwegingen gemaakt voor de zwaarte van de ingrepen in de verschillende monumentale lagen van het complex. Er is bewust gekozen om de meest ingrijpende aanpassingen te doen in de gebouwdelen waar de meest waardevolle structuur en interieur al waren aangetast of verwijderd. In de oudste kern zijn de historische interieurs gerestaureerd. Voor een optimale aansluiting op de overige gebouwdelen zijn de dichte bogen in het waaggebouw opengemaakt waardoor de ruimte is getransformeerd tot een verbindend hart van het complex en een lichte ontvangstruimte voor de burgers van de stad.

Projectgegevens

Opdrachtgever:
Gemeente Culemborg
Gebruiker:
Gemeente Culemborg
Locatie:
Oude Vismarkt, Culemborg
Status:
Rijksmonument
Datum:
2009 - 2011
Omvang:
1.520 m2
Programma:
publieke ontmoetingsruimten, stadsbalie, ambtelijke en bestuurlijke huisvesting, horeca, trouwlocatie, evenementen
Adv. inst.:
Evenhuis Inspectie & Adviesbureau
Constructeur:
Corsmit Raadgevende Ingenieurs (nu Royal Haskoning DHV)
Aannemer:
C. van Dillen en Zoon B.V.
Projectmanag.:
Brink Groep
Fotografie:
Arjen Veldt, Egid Pinckaers