so stadstheater arnhem afgerond

Het SO voor het Stadstheater Arnhem kreeg een warm ontvangst van zowel de Gemeente als het Arnhemse kwaliteitsteam! Het integrale ontwerp voor de renovatie wordt gerealiseerd door het Ontwerpteam Stadstheater, een samenwerking van Braaksma & Roos Architectenbureau, Civic – Public Architecture en ingenieur- en adviesbureau Arup. Het verouderde theatergebouw wordt omgetoverd naar een modern Stadstheater. Het rijke historische karakter wordt behouden en de monumentale delen uit het jaren-dertig ontwerp krijgen weer de ruimte om te stralen. De monumentale Grote zaal wordt geoptimaliseerd en zal na renovatie ruimte bieden aan 725 bezoekers. Daarnaast krijgt het theater een nieuwe kleine theater- en danszaal, een repetitie- en educatiezaal en een reeks nieuwe en multi-inzetbare foyers. Het nieuwe theatergebouw is de eerste stap in de metamorfose van het Koningspleingebied tot een groene stadsoase.

Begrijpen van de vraag

Na de gunning van deze opgave begin 2023 is het ontwerpteam opnieuw met open vizier en àlle betrokken in de vraag gedoken; hoe ziet het theater van de toekomst er uit? In nauwe samenwerking met het Stadstheater en hun technici,  horeca en andere medewerkers is onder andere de logistiek onder de loep gelegd – met resultaat.  Het ontwerp is aangescherpt en verbeterd. Door het laden en lossen te bundelen tussen de kleine en grote zaal, is de backstagelogistiek efficiënt, flexibel en robuust. Tegelijkertijd blijven de twee zijkanten vrij van zwaar verkeer, en dan komt ten goede aan de leefbaarheid rondom het gebouw.

Ook de bezoekerslogistiek is verder onderzocht in het SO voor het Stadstheater. Tijdens de visie heeft het ontwerpteam voorgesteld om de verschillende toegangen tot de zalen, de foyers en bars op één niveau te brengen. Niet alleen geeft dit mogelijkheden voor programmeren, het waarborgt ook de toegankelijkheid voor mensen met een beperking tijdens pauzes en festivals. Brede publiekstrappen met naastgelegen liften begeleiden het publiek via de centrale route naar dit niveau.

“door het publiek centraal vanuit de eerste verdieping te verdelen ontstaat er ruimte op de begane grond bij de entree. Het entreegebied wordt als één ensemble geactiveerd. Dit onderdeel werd met veel enthousiasme ontvangen door de Welstand van Arnhem.”
Het ontwerpteam

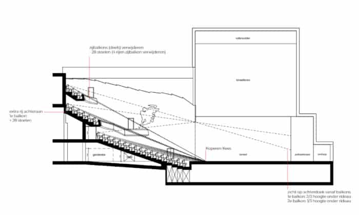
Renovatie van de Grote Zaal

Met name de renovatie van de Grote Zaal bleek een huzarenstukje in de studiekracht van het ontwerpteam. De afgelopen decennia zijn er veel ontwikkelingen op theatergebied geweest. De huidige grote zaal is ontworpen in een tijd waarin rangen en standen van groot belang waren. Wie de goedkopere kaartjes had gekocht mocht bij binnenkomst direct via de trap naar het hoogste balkon. Het ontwerp was daarmee al snel uit de sociaal-maatschappelijke mode. Door de krappe rij-afstanden is het huidige comfort te laag, en zijn de zichtlijnen op het toneel niet goed – zeker niet voor een zaal waarin zoveel dans geprogrammeerd wordt (en dus ook de voeten goed zichtbaar moeten zijn). Ook de technische eisen zoals bijvoorbeeld voor akoestiek zijn inmiddels heel anders dan toen; hoe laat je het plafond meespelen volgens de laatste theatertechniek, zonder in te boeten op erfgoed?

Het is de ambitie om publiek en artiest zo dicht mogelijk bij elkaar te brengen; fysiek en in beleving. De oorspronkelijke zaal heeft een intieme hoefijzervorm, een belangrijke kwaliteit om te behouden. Na diverse studies zijn er twee varianten ontwikkeld met super-optimale zichtlijnen en zitcomfort voor iedereen; een zaal met één balkon en een zaal met dubbel balkon. Beiden hebben eigen voor en nadelen met betrekking tot akoestiek, flexibiliteit en logistiek. Toch gaat de voorkeur uit naar de variant met twee balkons door de kwaliteit van contact tussen publiek en spelers. In de volgende fase worden de balkons verder geoptimaliseerd.

Start bodemonderzoek

Inmiddels is het archeologisch onderzoek rondom het Stadstheater van start. De oudste gevonden sporen gaan terug naar de periode tussen 1000 en 1300, het vroege begin van Arnhem als stad. Maar ook sporen van het middeleeuwse Agnietenklooster, de Arnhemse vesting en het 17e-eeuwse St. Catherina Gasthuis blijken goed intact te zijn. Ondertussen werkt het ontwerpteam verder aan de renovatie. Er is er een start gemaakt met grondig onderzoek naar duurzame technieken, waaronder CO2-reducatie, circulair materiaalgebruik, natuurinclusiviteit en klimaatadaptatie. De Gemeente Arnhem heeft de ambitie om het theater en de directe omgeving vorm te geven als een klimaatoase in de stad.

Meer weten over het SO? Lees hier de beknopte versie.