Landgoed Oud Bussem, Huizen
transparante uitbreiding van een klassiek landhuis

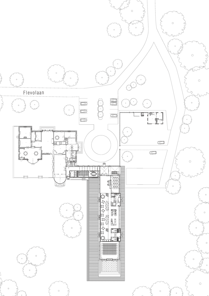
De monumentale kantoorvilla Oud Bussem in Huizen heeft een klassieke uitstraling met de wit gepleisterde gevels, halfronde serres en een leien dak. Braaksma & Roos Architectenbureau realiseerde een transparante eigentijdse uitbreiding van het landhuis met kantoorruimten, horeca en een auditorium. De nieuwe vleugel is een moderne interpretatie van het concept van een orangerie, die naadloos aansluit bij het rijksmonument en de weelderige landschapstuin.

De opgave

Een eigentijdse uitbreiding van een monumentale werkomgeving

In 2009 werd ons team benaderd door SAS Institute, een internationaal opererende organisatie voor bedrijfsanalyses. SAS Institute had de nadrukkelijke wens voor een eigentijds ontwerp van een nieuwe vleugel aan het bestaande monumentale landhuis. In deze vleugel moesten onder andere (flex)werkplekken, vergaderzalen, een stijlvol auditorium, een restaurant en een ontvangstruimte ingepast worden. Daarnaast diende er extra parkeergelegenheid te worden gerealiseerd.

Het ontwerp

Noch modern, noch historiserend

Het historische landgoed vormde een rijke bron van inspiratie voor het ontwerp van de nieuwe vleugel. Vanuit de analyse van het historische landschap ontstond het concept van een orangerie – een 19e-eeuws gebouwtype met een technisch-ambachtelijke en tegelijkertijd vaak neutrale uitstraling. De verouderde aanbouw uit de jaren ’60 maakte plaats voor het nieuwe ontwerp.

Het resultaat

Technisch innovatief en transparant

Een directe inspiratie voor de vorm en materialen van de nieuwe vleugel vonden wij in de serre van het landhuis. Met de transparantie van het glas, de geperforeerde koperen gevels, het geprepatineerde koperen dak en de neutrale inrichting versmelt de nieuwe vleugel met het omliggende landschap en sluit deze naadloos aan bij het monument. De vloeiende overgang tussen binnen en buiten wordt versterkt door de doorgezette stenen vloer. Een houten vlonder vormt een breed terras aan de zuidzijde van het gebouw.

 

Open en besloten werkruimten

De begane grond van de orangerie bevindt zich een open ontmoetingsruimte met centraal daarin het restaurant. In de ruimte zijn een open en een besloten auditorium en lezingenruimte geplaatst. De eerste verdieping biedt ruimte aan twee open kantoorvloeren evenals meer besloten werk- en overlegplekken.

Projectgegevens

Opdrachtgever:
SAS Institute
Gebruiker:
SAS Institute
Locatie:
Landgoed Oud Bussem, Huizen
Status:
Rijksmonument
Datum:
oktober 2007 - maart 2011
Omvang:
2.400 m2
Programma:
werkruimten, auditorium, restaurant, parkeergarage
Bouwsom:
5.2 miljoen euro
Interieur:
OTH
Aannemer:
Jurriëns
Prijzen:
Nationale Staalprijs 2012 (shortlist)
Fotografie:
Kim Zwarts