Het industriële complex van de beroemde Nederlandse chocoladefabriek Droste ligt op een prachtige plek aan het Spaarne in Haarlem. In 2009 realiseerde Braaksma & Roos Architectenbureau de herbestemming van de rijksmonumentale branderij en pakkerij van de fabriek tot 38 ruime woningen op de verdiepingen en een horecagelegenheid met terras op de begane grond aan de waterkant. De nieuwe invulling is geënt op de bestaande betonnen structuur van de gebouwen. Hierdoor is de ruimtelijkheid en de industriële sfeer van de fabriek nog steeds goed voelbaar. In het hart van het rijksmonument hebben wij een langgerekt atrium met een hoge lichtstraat ontworpen die zorgt voor heldere ontsluitingen naar de woningen.
Drostefabriek, Haarlem Luxe woningen in een monumentale chocoladefabriek
chevron_right
Wonen in een chocoladefabriek
Historische foto van de Drostefabriek
Drostefabriek Haarlem
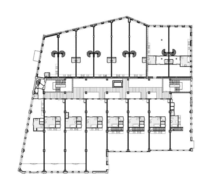
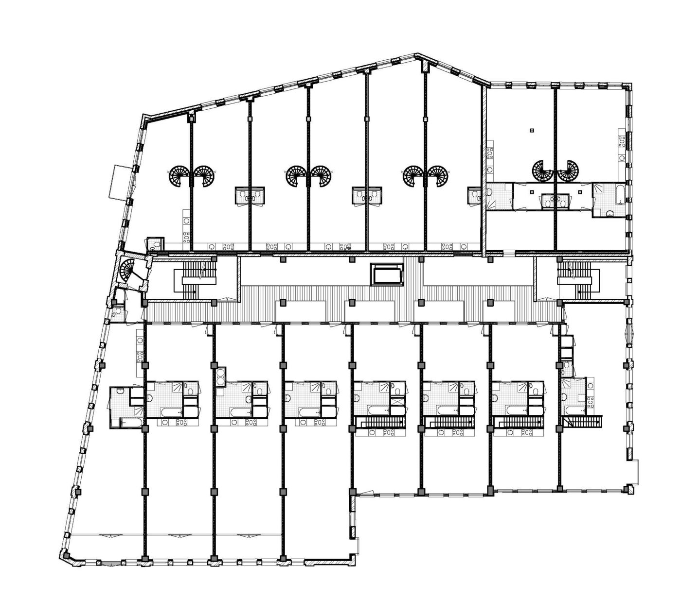
Plattegrond van de woningen op de verdieping van de Drostefabriek
Trappenhuis in de voormalige Drostefabriek in Haarlem
In het hart van het gebouw realiseerden wij een langgerekt licht atrium dat de woningen ontsluit
Woning in de Drostefabriek
Projectgegevens
Opdrachtgever:
Hoogergeest Projectontwikkeling
Omvang:
7.000 m2
Datum:
2009
Programma:
wonen, horeca, werkruimten, atelier
Status:
Rijksmonument
Locatie:
Haarlem
Fotografie:
Marc Faasse